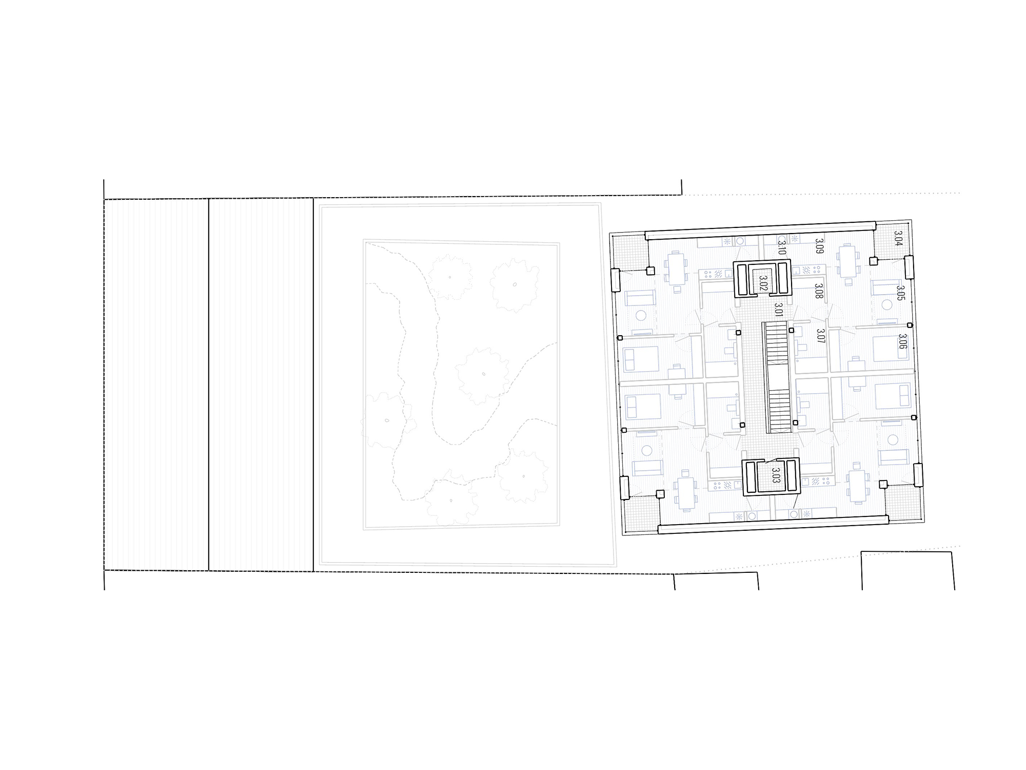
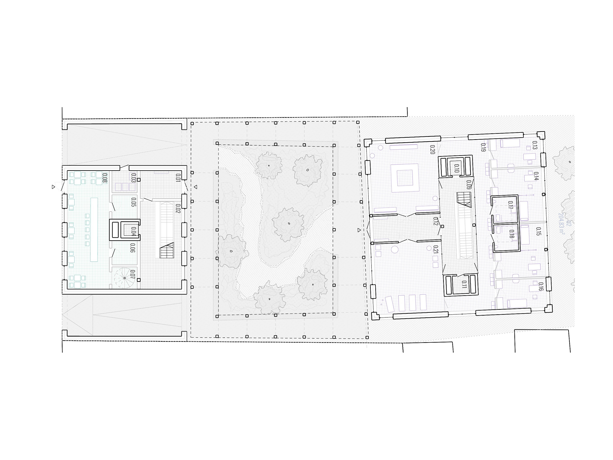
https://analog-architecture.com/wp-content/uploads/2025/09/2025_WL_KIL-WIZ-4.jpghttps://analog-architecture.com/wp-content/uploads/2025/09/2025_WL_KIL-01.jpghttps://analog-architecture.com/wp-content/uploads/2025/09/2025-09-15-WL-KI-7-LR.jpghttps://analog-architecture.com/wp-content/uploads/2025/09/2025-09-15-WL-KI-3-LR-MCS.jpghttps://analog-architecture.com/wp-content/uploads/2025/09/2025-09-15-WL-KI-11-LR.jpghttps://analog-architecture.com/wp-content/uploads/2025/09/2025_WL_KIL-1-PK-RZUT-0.jpghttps://analog-architecture.com/wp-content/uploads/2025/09/2025_WL_KIL-1-PK-RZUT1.jpghttps://analog-architecture.com/wp-content/uploads/2025/09/2025_WL_KIL-1-PK-RZUT3.jpghttps://analog-architecture.com/wp-content/uploads/2025/09/2025_WL_KIL-2-PK-SEC_B2.jpghttps://analog-architecture.com/wp-content/uploads/2025/09/2025_WL_KIL-2-PK-EL-B2.jpghttps://analog-architecture.com/wp-content/uploads/2025/09/2025_WL_KIL-2-PK-WIZ-MIESZKANIE.jpghttps://analog-architecture.com/wp-content/uploads/2025/09/2025_WL_KIL-WIZ_RECEPCJA.jpghttps://analog-architecture.com/wp-content/uploads/2025/09/2025_WL_KIL-WIZ_ZIMA.jpghttps://analog-architecture.com/wp-content/uploads/2025/09/2025_WL_KIL-WIZ-3.jpghttps://analog-architecture.com/wp-content/uploads/2025/09/2025_WL_KIL-2-PK-WIZ_FRONT.jpghttps://analog-architecture.com/wp-content/uploads/2025/09/2025_WL_KIL-2-PK-WIZ_Z_ULICY.jpg WL-KIL Mixed-use Building location: Wloclawek project: 2025 architect: ANALOG Piotr Smierzewski, Michał Czeszejko, Rafał Taracha project team: Jacek Moczała, Michał Pietrusiewicz status: concept design